OP

Home 6

Littleworth Road, Esher, Surrey, KT10 9PN

W3W what3words   ///about.waddle.begins

Dev Hero Bedroom Icon

2 bedroom apartment home

Dev Hero Price Icon

Reserved

Dev Hero Time Icon

We're open today: 10am - 5pm

Monday

10:00 AM - 17:00 PM

Tuesday

10:00 AM - 17:00 PM

Wednesday

10:00 AM - 17:00 PM

Thursday

10:00 AM - 17:00 PM

Friday

10:00 AM - 17:00 PM

Saturday

10:00 AM - 17:00 PM

Sunday

10:00 AM - 17:00 PM

Oaklands
Gallery Icon

1 / 1

About Home 6

Discover a delightful two-bedroom apartment that exemplifies openness and luminosity. The kitchen and living area create a light-filled haven, adorned with plentiful windows flowing effortlessly onto the expansive terrace. Spanning the entire width of the apartment, it creates an idyllic outdoor oasis. Both double bedrooms benefit from built in wardrobes, providing ample of storage. 

Key features

Car charging point

Energy efficient appliances included

10 year new home warranty

Underfloor heating

Smart heating and zoned controls

Insulation to reduce heat loss

Full fibre broadband

Wired for Sky Q

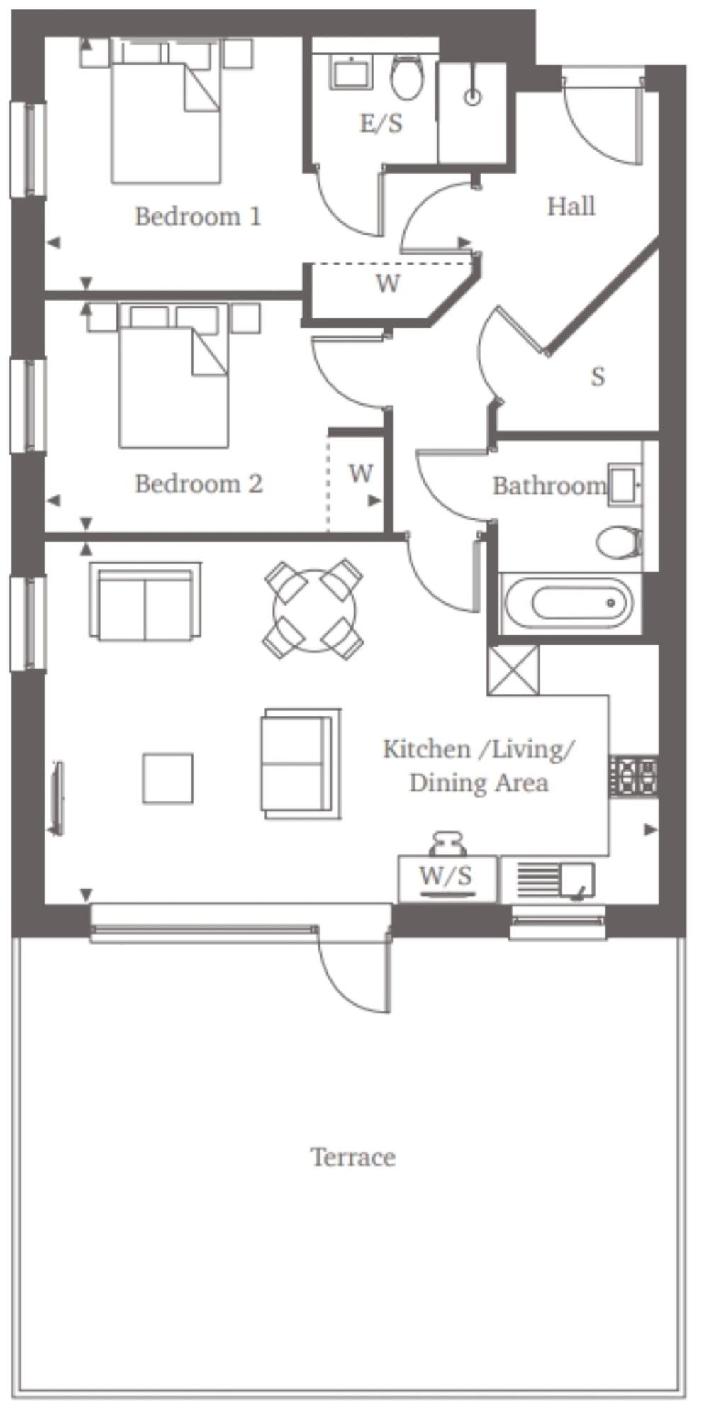
Floorplan

Multi Floor Plan Image

Two Bedroom Home
73.39 sq m
790 sq ft

Kitchen/Living/Dining Area
7.26m x 4.33m*
23’10” x 14’2”*

Bedroom 1
5.03m x 3.05m*
16’6” x 10’0”*

Bedroom 2
3.98m x 2.72m*
13’1” x 8’11”*

Terrace
42 sq m
452 sq ft

Point from which maximum dimensions are measured. Dimensions are intended for guidance only and may vary by plus or minus 7.6cm/3", The plots indicate general layout only which may vary from other plots. Kitchen and bathroom layouts indicative only. W denotes wardrobe. Cpd denotes cupboard. E/S denotes ensuite, W/S denotes workstation. — denotes porch. (h) denotes handed. Please contact Sales Consultant for more information.

Site plan

Available Icon

Available

Reserved Icon

Reserved

Sold Icon

Sold

Calculator Block Main Image

Use our handy
calculators

Stamp duty calculator

Mortgage calculator

Calculations based on 30 year mortgage term

Oaklands Park

Littleworth Road, Esher, Surrey, KT10 9PN

W3W what3words   ///about.waddle.begins

Phone Icon

1, 2 & 3 bedroom homes

Email Icon

from £375,000

Email Icon

We're open today: 10am - 5pm

OPENING TIMES

Monday

10am - 5pm

Tuesday

10am - 5pm

Wednesday

10am - 5pm

Thursday

10am - 5pm

Friday

10am - 5pm

Saturday

10am - 5pm

Sunday

10am - 5pm

View brochure

Brochure Image

View brochure

DOWNLOAD NOW