AP

Home 7

Langley Road, Staines upon Thames, Surrey, TW18 2EH

W3W what3words   ///organ.valley.region

Dev Hero Bedroom Icon

4 bedroom home

Dev Hero Price Icon

£765,000

Dev Hero Time Icon

We're open today: 10am - 5pm

Monday

10:00 AM - 17:00 PM

Tuesday

10:00 AM - 17:00 PM

Wednesday

10:00 AM - 17:00 PM

Thursday

10:00 AM - 17:00 PM

Friday

10:00 AM - 17:00 PM

Saturday

10:00 AM - 17:00 PM

Sunday

10:00 AM - 17:00 PM

ashcroft plot 7-9
ashcroft kitchen
Ashcroft
ashcroft hero 2
BP
AP
ashcroft
Gallery Icon

1 / 7

About Home 7

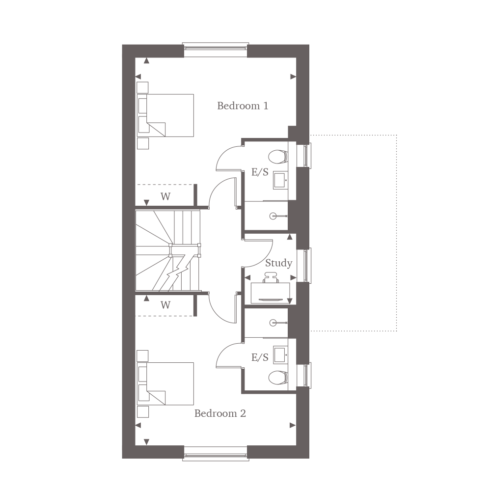
Indulge in the charm of this four bedroom house, featuring a private driveway and carport. The entrance is located in the middle of the property, beneath the carport, and opens to a hallway showcasing a downstairs W/C and a storage area. To the front of the property, a spacious living room awaits, adorned with a bay window and an understairs storage space. To the back, the kitchen/dining room offers ample space and abundant natural light. The first floor boasts two double bedrooms, each with generous en-suites and built-in wardrobes. A study room is positioned between the bedrooms, providing a versatile space for work or leisure. The second floor features two additional double bedrooms, sharing a bathroom located between them.

Key features

10 year new home warranty

Car port

Dedicated study

A-rated boiler

Allocated parking space

Private garden

Landscaped front & turfed rear garden

Zone heating

Floorplan

Multi Floor Plan Image
Multi Floor Plan Image
Multi Floor Plan Image

Total Internal Area

133.97 sqm  1442 sqft


Living Room

4.49m x 4.18m

14’7” x 13’7”


Kitchen/Dining Room

4.49m* x 4.12m*

14’9”* x 13’6”*

Bedroom One

4.49m* x 4.12m*

14’9”* x 13’6”*


Bedroom Two

4.49m* x 4.18m*

14’9”* x 13’9”*


Study

1.95m x 1.42m

6’5” x 4’8”

Bedroom Three

4.42m* x 2.51m

14’5”* x 8’3”


Bedroom Four

4.18m* x 2.51m*

13’7”* x 8’2”*

Point from which maximum dimensions are measured. Dimensions are intended for guidance only and may vary by plus or minus 7.6cm/3", The plots indicate general layout only which may vary from other plots. Kitchen and bathroom layouts indicative only. W denotes wardrobe. Cpd denotes cupboard. E/S denotes ensuite, W/S denotes workstation. — denotes porch. (h) denotes handed. Please contact Sales Consultant for more information.

Site plan

Available Icon

Available

Reserved Icon

Reserved

Sold Icon

Sold

Calculator Block Main Image

Use our handy
calculators

Stamp duty calculator

Mortgage calculator

Calculations based on 30 year mortgage term

Ashcroft Place

Langley Road, Staines upon Thames, Surrey, TW18 2EH

W3W what3words   ///organ.valley.region

Phone Icon

2, 3 & 4 bedroom homes

Email Icon

from £400,000

Email Icon

We're open today: 10am - 5pm

OPENING TIMES

Monday

10am - 5pm

Tuesday

10am - 5pm

Wednesday

10am - 5pm

Thursday

10am - 5pm

Friday

10am - 5pm

Saturday

10am - 5pm

Sunday

10am - 5pm

View brochure

Brochure Image

View brochure

DOWNLOAD NOW