OP

Home 18

Littleworth Road, Esher, Surrey, KT10 9PN

W3W what3words   ///about.waddle.begins

Dev Hero Bedroom Icon

2 bedroom apartment home

Dev Hero Price Icon

Reserved

Dev Hero Time Icon

We're open today: 10am - 5pm

Monday

10:00 AM - 17:00 PM

Tuesday

10:00 AM - 17:00 PM

Wednesday

10:00 AM - 17:00 PM

Thursday

10:00 AM - 17:00 PM

Friday

10:00 AM - 17:00 PM

Saturday

10:00 AM - 17:00 PM

Sunday

10:00 AM - 17:00 PM

Stamp duty contributions

Oaklands
Gallery Icon

1 / 1

Stamp duty contributions

About Home 18

Indulge in the allure of this two-bedroom apartment, stretching across the width of the building and offering both north and south facing terraces.

The expansive open plan kitchen and living area seamlessly connect to the north facing terrace, while the first bedroom provides a door to the south facing terrace and boasts its own en-suite. Both bedrooms are doubles, featuring built-in wardrobes for ample storage.

The hallway accommodates two storage spaces—a utility cupboard and a spacious bathroom.

Key features

10 year new home warranty

Terrace

Underfloor heating

Energy efficient appliances included

Smart heating and zoned controls

Car charging points

Full fibre broadband

Wired for Sky Q

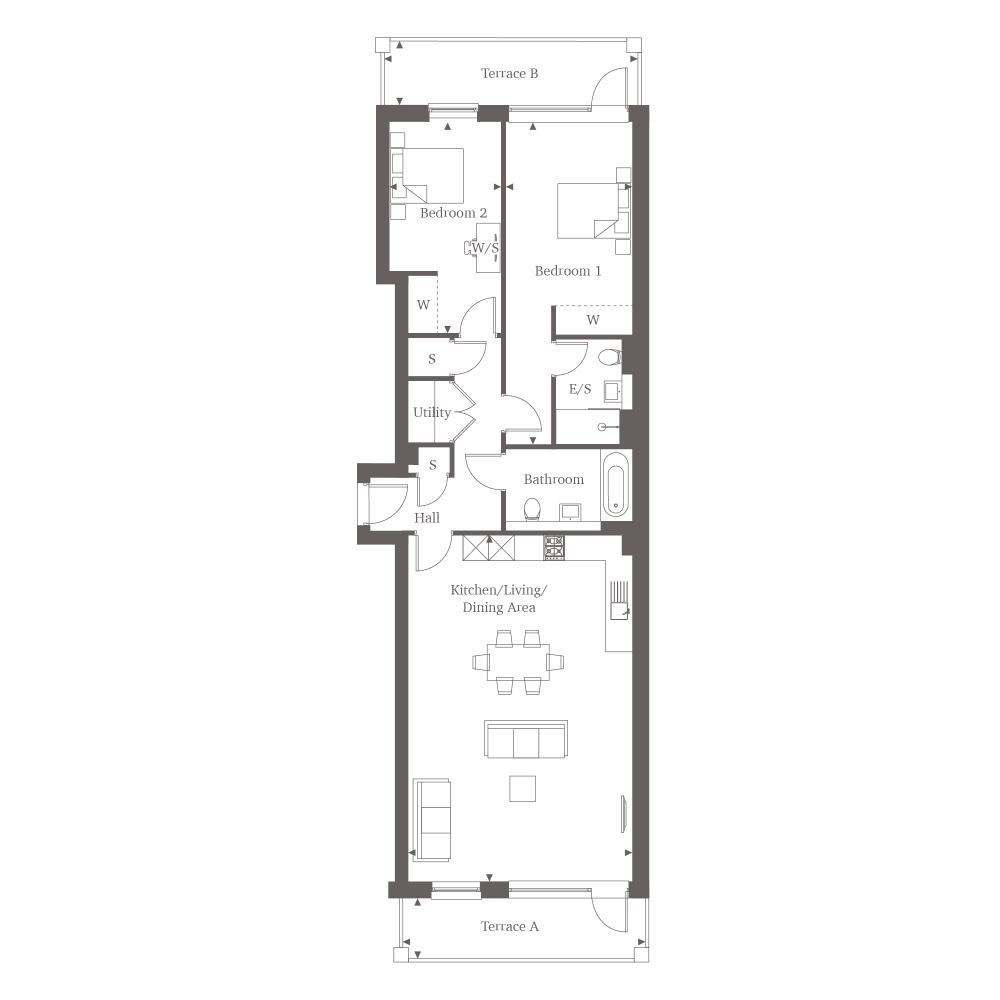
Floorplan

Multi Floor Plan Image

Total Internal Area

95.54 sq m

1028 sq ft


Kitchen/Living/Dining Area

8.11m x 5.21m

26’7” x 17’1”


Bedroom 1

7.59m x 2.96m

24’10” x 9’8”


Bedroom 2

4.98m x 2.60m

 16’4” x 8’6”

Point from which maximum dimensions are measured. Dimensions are intended for guidance only and may vary by plus or minus 7.6cm/3", The plots indicate general layout only which may vary from other plots. Kitchen and bathroom layouts indicative only. W denotes wardrobe. Cpd denotes cupboard. E/S denotes ensuite, W/S denotes workstation. — denotes porch. (h) denotes handed. Please contact Sales Consultant for more information.

Site plan

Available Icon

Available

Reserved Icon

Reserved

Sold Icon

Sold

Calculator Block Main Image

Use our handy
calculators

Stamp duty calculator

Mortgage calculator

Calculations based on 30 year mortgage term

Oaklands Park

Littleworth Road, Esher, Surrey, KT10 9PN

W3W what3words   ///about.waddle.begins

Phone Icon

1, 2 & 3 bedroom homes

Email Icon

from £375,000

Email Icon

We're open today: 10am - 5pm

OPENING TIMES

Monday

10am - 5pm

Tuesday

10am - 5pm

Wednesday

10am - 5pm

Thursday

10am - 5pm

Friday

10am - 5pm

Saturday

10am - 5pm

Sunday

10am - 5pm

View brochure

Brochure Image

View brochure

DOWNLOAD NOW