OP

Home 25 Oaklands House

Littleworth Road, Esher, Surrey, KT10 9PN

Dev Hero Bedroom Icon

2 bedroom apartment

Dev Hero Price Icon

£695,000

Dev Hero Time Icon

We're open today: 10am - 5pm

Monday

10:00 AM - 17:00 PM

Tuesday

10:00 AM - 17:00 PM

Wednesday

10:00 AM - 17:00 PM

Thursday

10:00 AM - 17:00 PM

Friday

10:00 AM - 17:00 PM

Saturday

10:00 AM - 17:00 PM

Sunday

10:00 AM - 17:00 PM

£10,000 STAMP DUTY CONTRIBUTION

OH plot 21 bedroom
Oaklands
OH plot 21 dining room
oaklands park - plot 4 - bathroom
Gallery Icon

1 / 4

£10,000 STAMP DUTY CONTRIBUTION

About Home 25 Oaklands House

This stylish third‑floor, two‑bedroom apartment combines contemporary design with thoughtful functionality. The bright, open‑plan kitchen, living and dining area forms the heart of the home, extending seamlessly onto two private terraces positioned at either end for all‑day natural light. Both bedrooms include built‑in wardrobes, with bedroom one further enhanced by a sleek en‑suite and direct access to a terrace, perfect for a quiet morning coffee. Throughout the apartment, multiple well‑placed storage cupboards offer generous space for everyday essentials, ensuring a beautifully organised living environment.

Interior photography of show home and some images have been digitally enhanced.

Key features

10 year new home warranty

Neff appliances

Underfloor heating to wet rooms

Terrace

Car charging points

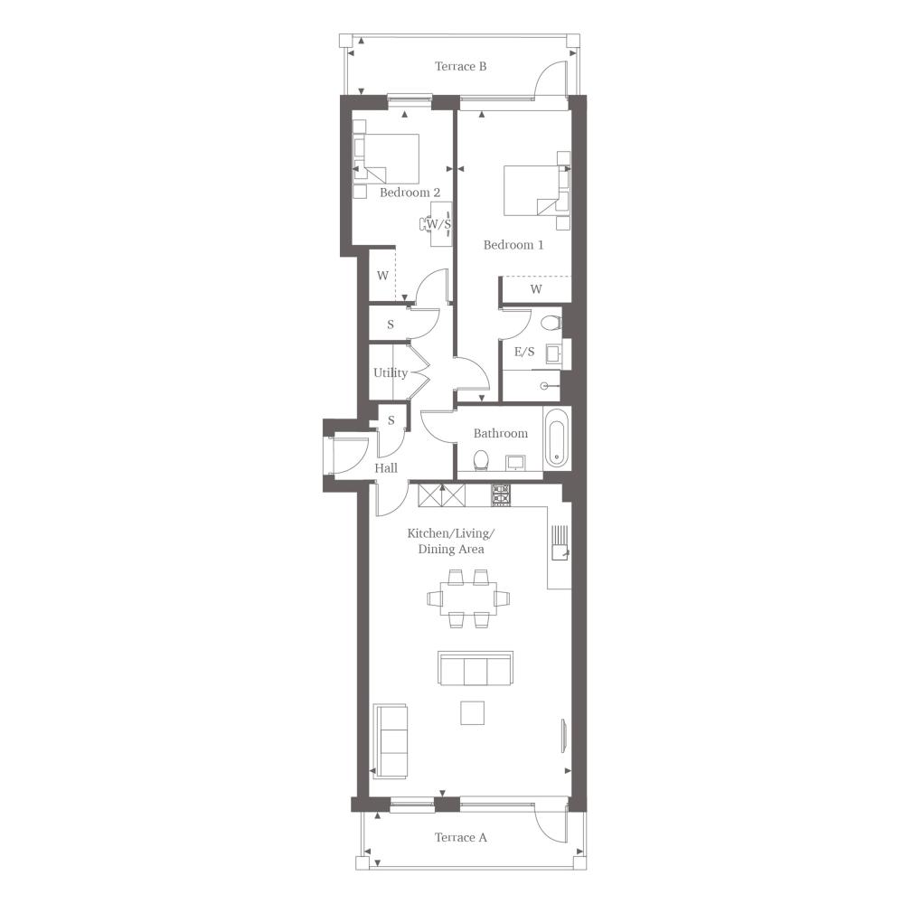
Floorplan

Multi Floor Plan Image

Apartment 25 (Oaklands House)


Total Internal Area 

95.54 sqm  1028 sqft


Kitchen/Living/Dining Area 

8.11m x 5.21m
26’7” x 17’1”


Bedroom One
7.59m x 2.96m*
24’11” x 9’9”*


Bedroom Two
5.00m x 2.62m*
 16’5” x 8’7”*

Point from which maximum dimensions are measured. Dimensions are intended for guidance only and may vary by plus or minus 7.6cm/3", The plots indicate general layout only which may vary from other plots. Kitchen and bathroom layouts indicative only. W denotes wardrobe. Cpd denotes cupboard. E/S denotes ensuite, W/S denotes workstation. — denotes porch. (h) denotes handed. Please contact Sales Consultant for more information.

Site plan

Available Icon

Available

Reserved Icon

Reserved

Sold Icon

Sold

Calculator Block Main Image

Use our handy
calculators

Stamp duty calculator

Mortgage calculator

Calculations based on 30 year mortgage term

Oaklands Park

Littleworth Road, Esher, Surrey, KT10 9PN

Phone Icon

1, 2 & 3 bedroom homes

Email Icon

from £385,000

Email Icon

We're open today: 10am - 5pm

OPENING TIMES

Monday

10am - 5pm

Tuesday

10am - 5pm

Wednesday

10am - 5pm

Thursday

10am - 5pm

Friday

10am - 5pm

Saturday

10am - 5pm

Sunday

10am - 5pm

View brochure

Brochure Image

View brochure

DOWNLOAD NOW