RG

Home 12

Haywards Heath Road, High Street, Balcombe, West Sussex, RH17 6PA

Dev Hero Bedroom Icon

3 bedroom home

Dev Hero Price Icon

Reserved

Dev Hero Time Icon

We're open today: 10am - 5pm

Monday

10:00 AM - 17:00 PM

Tuesday

10:00 AM - 17:00 PM

Wednesday

10:00 AM - 17:00 PM

Thursday

10:00 AM - 17:00 PM

Friday

10:00 AM - 17:00 PM

Saturday

10:00 AM - 17:00 PM

Sunday

10:00 AM - 17:00 PM

Rectory Gardens CGI external plots 13-17
Gallery Icon

1 / 1

About Home 12

This wonderful detached three bedroom home, set over two floors showcases the bright and open ground floor having a kitchen/dining/family room with bi-fold doors to the spacious garden and separate sizeable living room with a large bay window. This floor also has a bathroom and two storage cupboards. The first floor features three spacious double bedrooms, with bedrooms one and two benefitting from fitted wardrobes. Bedroom one has the added luxury of a en-suite. Another bathroom as well as a linen cupboard and a storage cupboard complete this great first floor. Loft space with a ladder for easy access adds to the significant storage space within this stunning home. The home benefits from a driveway with an allocated parking space and a beneficial garage with an electric door as well as generously sized patio and grass garden.

Key features

10 year new home warranty

Allocated parking space

Energy efficient appliances included

Bi-fold doors to garden

Garage with electric door

Underfloor heating

Smart heating and zoned controls

Full fibre broadband

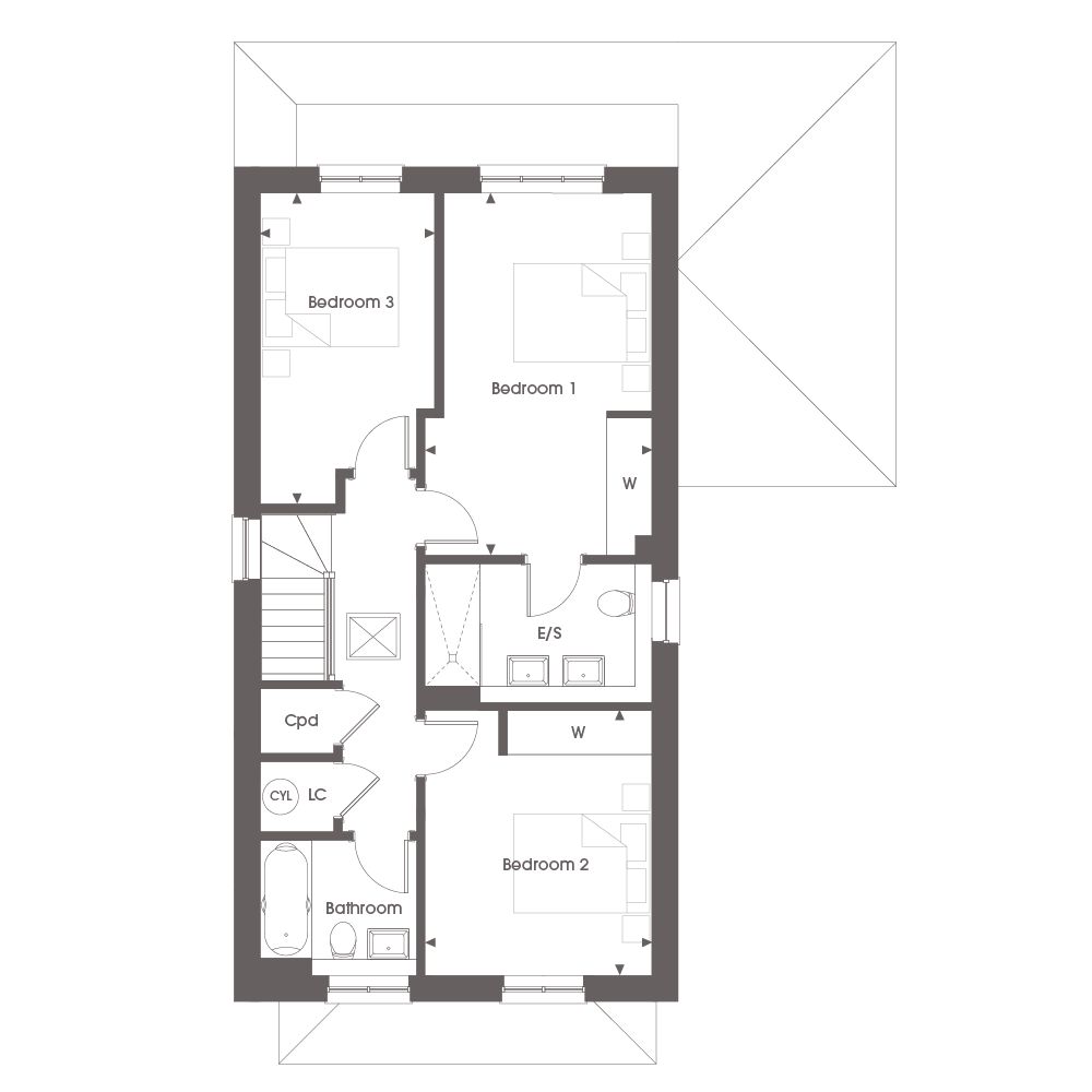
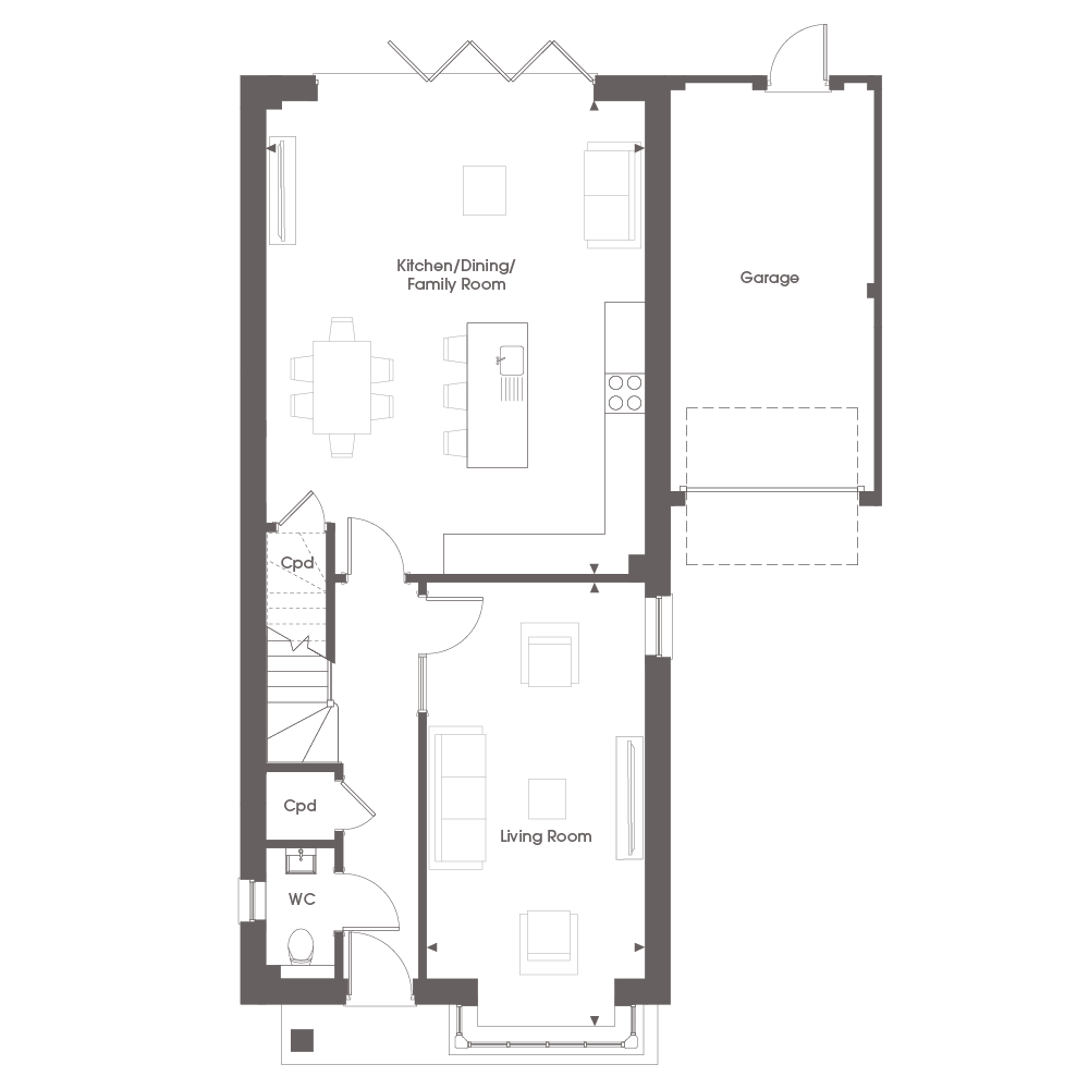
Floorplan

Multi Floor Plan Image
Multi Floor Plan Image

Kitchen/Dining/Family Room

7.05m x 5.65m

23'1" x 18'6"


Living Room

6.61m x 3.25m

21'8" x 10'7"

Bedroom 1

5.22m x 3.27m

17'1" x 10'8"


Bedroom 2

3.81m x 3.27m

12'6" x 10'8"


Bedroom 3

4.48m x 2.51m

14'8" x 8'2"

Point from which maximum dimensions are measured. Dimensions are intended for guidance only and may vary by plus or minus 7.6cm/3", The plots indicate general layout only which may vary from other plots. Kitchen and bathroom layouts indicative only. W denotes wardrobe. Cpd denotes cupboard. E/S denotes ensuite, W/S denotes workstation. — denotes porch. (h) denotes handed. Please contact Sales Consultant for more information.

Site plan

Available Icon

Available

Reserved Icon

Reserved

Sold Icon

Sold

Calculator Block Main Image

Use our handy
calculators

Stamp duty calculator

Mortgage calculator

Calculations based on 30 year mortgage term

Rectory Gardens

Haywards Heath Road, High Street, Balcombe, West Sussex, RH17 6PA

Phone Icon

3 bedroom homes

Email Icon

from £725,000

Email Icon

We're open today: 10am - 5pm

OPENING TIMES

Monday

10am - 5pm

Tuesday

10am - 5pm

Wednesday

10am - 5pm

Thursday

10am - 5pm

Friday

10am - 5pm

Saturday

10am - 5pm

Sunday

10am - 5pm