RG

Home 9

Haywards Heath Road, High Street, Balcombe, West Sussex, RH17 6PA

Dev Hero Bedroom Icon

3 bedroom home

Dev Hero Price Icon

£690,000

Dev Hero Time Icon

We're open today: 10am - 5pm

Monday

10:00 AM - 17:00 PM

Tuesday

10:00 AM - 17:00 PM

Wednesday

10:00 AM - 17:00 PM

Thursday

10:00 AM - 17:00 PM

Friday

10:00 AM - 17:00 PM

Saturday

10:00 AM - 17:00 PM

Sunday

10:00 AM - 17:00 PM

Rectory Gardens CGI external plots 13-14
Internal balcombe kitchen
internal image living room- balcombe
Balcombe internal image
Gallery Icon

1 / 4

About Home 9

This three-bedroom house features a bright, open-plan ground floor with a kitchen/dining area and a separate family space that opens onto a picturesque garden through bi-fold doors. A separate living room provides an ideal space for relaxing or entertaining friends and family. Upstairs includes three spacious double bedrooms, with bedrooms one and two benefitting from fitted wardrobes. Bedroom one also enjoys the added luxury of an en-suite. A second bathroom and a linen cupboard complete this level. Additional loft space with ladder access offers even more storage. Outside, the property includes a driveway with two parking spaces, along with a patio and lawned garden.

Key features

10 year new home warranty

Bi-fold doors to garden

Underfloor heating

Loft storage

Car charging point

Driveway

West facing garden

Siemens appliances

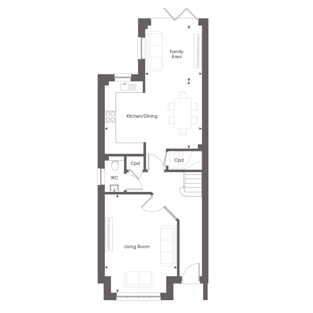
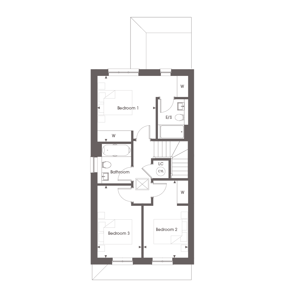
Floorplan

Multi Floor Plan Image
Multi Floor Plan Image

Total Internal Area

121.72 sqm  1310 sqft 


Kitchen/Dining

5.24m x 3.63m

17'2" x 11'10"


Family Area

3.06m x 3.00m

10'0" x 9'10"


Living Room

5.30m x 3.89m

17'4" x 12'9"

Bedroom One
3.79m x 3.37m
12'5" x 11'0"


Bedroom Two
4.46m x 2.58m
14'7" x 8'5"


Bedroom Three
4.16m x 2.54m
13'7" x 8'4"


Point from which maximum dimensions are measured. Dimensions are intended for guidance only and may vary by plus or minus 7.6cm/3", The plots indicate general layout only which may vary from other plots. Kitchen and bathroom layouts indicative only. W denotes wardrobe. Cpd denotes cupboard. E/S denotes ensuite, W/S denotes workstation. — denotes porch. (h) denotes handed. Please contact Sales Consultant for more information.

Site plan

Available Icon

Available

Reserved Icon

Reserved

Sold Icon

Sold

Calculator Block Main Image

Use our handy
calculators

Stamp duty calculator

Mortgage calculator

Calculations based on 30 year mortgage term

Rectory Gardens

Haywards Heath Road, High Street, Balcombe, West Sussex, RH17 6PA

Phone Icon

3 bedroom homes

Email Icon

from £690,000

Email Icon

We're open today: 10am - 5pm

OPENING TIMES

Monday

10am - 5pm

Tuesday

10am - 5pm

Wednesday

10am - 5pm

Thursday

10am - 5pm

Friday

10am - 5pm

Saturday

10am - 5pm

Sunday

10am - 5pm